Gebührenfreie Reiseberatung

Deutschland Flagge 0800 258 27 24

oder weltweit zum Normaltarif:

0 72 23 - 80 83 86
AIDAprima
AIDAprima

Mit "AIDAprima" befährt seit 2016 eine neue Schiffsgeneration die Weltmeere. "AIDAprima" setzt mit dem neuen Restaurantkonzept mit noch größerer Auswahl, dem luxuriösen Organic Spa und einem weltbesten Entertainment neue Maßstäbe. Das individuelle und vielfältige Angebot an Bord wurde noch vergrößert und ausgebaut. Das Reisen mit "AIDAprima" ist ein besonderes Erlebnis für die ganze Familie, wobei das neue Flaggschiff mit bewährten und neuen Freizeit-Highlights glänzt. Das neue Kabinenkonzept auf "AIDAprima" mit großzügig geschnittenen Verandakabinen, Kabinen mit eigenem Wintergarten auf dem Lanaideck und den eindrucksvolle Suiten läßt Sie die Kreuzfahrt noch individueller genießen. Das karibische Flair im Design der "AIDAprima" und das moderne Ambiente an Bord versetzen Sie stets in die beste Urlaubslaune. Eine Kreuzfahrt mit "AIDAprima" ist nicht nur ein Urlaub auf einem Schiff, sondern mit dieser Reise eröffnet sich für Sie die Vision einer neuen Art "Kreuzfahrterlebnis".

Barrierefreies Reisen
Barrierefreies Reisen
Nahezu alle öffentlichen Bereiche der AIDA Schiffe, wie Bars, Restaurants, Lifte, Außendecks, öffentliche WCs und Kabinen sind barrierefrei erreichbar und mit einer Orientierungsbeschilderung in Profil- und Brailleschrift ausgestattet. AIDA Cruises arbeitet ständig daran, dass Sie als Gast mit individuellen Beeinträchtigungen Ihre schönste Zeit des Jahres auf AIDAprima so unabhängig und barrierefrei wie möglich genießen können.

Auf AIDAprima gibt es 14 Passagieraufzüge, sechs im vorderen, sechs im mittleren und zwei im hinteren Treppenhaus. Die Kapazität beträgt jeweils max. 1 Rollstuhlfahrer und ca. 3-4 Personen. Die Türbreite (lichte Weite) beträgt ca. 100 cm.

Nicht der gesamte Wellness- und Sportbereich ist auf AIDAprima barrierefrei erreichbar. Das AIDA-Service-Team an Bord wird mit Ihnen gemeinsam eine individuelle Lösung für Sie finden.

An Bord von AIDAprima gibt es am Pool auf Deck 15 einen Pool Lift, welcher besonders den rollstuhlfahrenden Gästen die Nutzung des Pools ermöglicht.

Spezielle Toilettenaufsätze, Duschhocker, Rollatoren und Rollstühle sowie für gehörlose Gäste Kabinensets zur visuellen und taktilen Wahrnehmung akustischer Signale sind auf AIDAprima nach erfolgter Reservierung (bis spätestens 2 Wochen vor Reiseantritt) ausleihbar. Am ersten Tag der Reise lädt das AIDA-Service-Team zu einem Barrierefrei-Treff ein. Dasbei erhalten Sie wichtige Informationen zu Ihrer individuellen Urlaubsplanung und das Team steht Ihnen für Fragen zur Verfügung. Bei dieser Veranstaltung erfahren Sie alles Wichtige zu:
  • Landgangsmöglichkeiten in den Häfen für Rollstuhlfahrer
  • Standard-Ausflugsangebote und mögliche individuelle Arrangements
  • Reservierung und Lage der Restaurant-Sitzplätze für Rollstuhlfahrer/ Gäste mit eingeschränkter Geh-Fähigkeit
  • Verleih-Equipment und Orientierungshilfen an Bord
Kinderbetreuung

Auf allen AIDA Kreuzfahrtschiffen findet eine professionelle Kinder- und Jugendbetreuung (3 - 17 Jahre) nach deutschem Standard statt, damit Sie und Ihre Familie sorglos und entspannt Ihren Urlaub auf dem Meer genießen können. Eine kindergerechte Ausstattung der Schiffe und Kabinen mit Verbindungstüren sind für ein familienfreundliches Engagement bei AIDA Cruises selbstverständlich.

´
Kids Club
Kids Club Im Kids Club für die Kinder können Sie nach Rücksprache mit der Kids Crew gerne gemeinsam mit Ihrem Kind am Programm der Seepferdchen (3-6 Jahre) teilnehmen oder außerhalb der Programmzeiten Spielsachen, Bücher und Malutensilien bei der Kids Crew ausleihen.

Kinder unterschiedlichen Alters haben verschiedene Bedürfnisse. Während der Ferienzeiten werden die Kinder in unterschiedlichen Spielgruppen betreut.

Bei den Seepferdchen werden die Kinder von 3-6 Jahre, bei den Delfinen von 7-9 Jahren und bei den Sharks von 10-11 Jahre mit altersgerechten Konzepten unterhalten und beschäftigt.
Mini Club
Mini Club Im "Mini Club" auf Deck 14 betreut ein erfahrenes und bestens ausgebildetes Team Babys ab sechs Monaten und Kleinkinder bis drei Jahren. Zudem übernimmt ein zuverlässiger Babysitter gerne die Nachtschicht.
Wave Club
Wave Club Jugendliche zwischen 12 und 17 Jahren sind im Wave Club unter sich. Spannende Workshops, coole Ausflüge und abwechslungsreiche Partys mit interessanten Mottos halten den anspruchsvollen Nachwuchs garantiert bei Laune.

Mit wechselnden Themenworkshops (z. B. HipHop, Beauty, Cocktail, DJ, Massage, Golf) oder mit der große AIDA Kids & Teens Show gegen Ende der Schiffsreise werden die Kinder die AIDA-Kreuzfahrt als ein unvergessliches Erlebnis in Erinnerung behalten.
Neue Suche starten »
Innenkabine Kabinengroesse: 13 - 24 qm
für bis zu 4 Personen
teils getrennt stehende Betten
Bad mit Dusche
Kabinenkategorien: IA, IB
Verandakabine Kabinengroesse: 21 - 27 qm
inkl. Veranda (4-13 qm)
Kabinenkategorien: VH, VG
Verandakabine Komfort Kabinengroesse: 24 -37 qm
inkl. Veranda (4-16 qm)
Kabinenkategorien: VF, VC, VD, VA,VE, VB
Meerblickkabine Kabinengroesse: 19-20 qm
für bis zu 4 Personen
Bad mit Dusche
Kabinenkategorien: MA, MB, MC, MD
MA und MC mit begehbarem Kleiderschrank
Lanaikabine Kabinengroesse: 29-32 qm
für bis zu 4 Personen
inklusive ca. 6 qm Veranda und 6 qm Wintergarten
Auf Wunsch mit 2 Badezimmer
Kabinenkategorien: VL
Suite Suiten auf AIDAprima sind verfügbar als Junior-, Panorama-, Premium- und Deluxe-Suite mit 40-125 qm inklusive privatem Sonnendeck (12-82 qm).
für bis zu 4 Personen
ausgestattet mit 2 Badezimmern
mit getrennten Schlafbereich
Kabinenkategorien: SA, SB, SC, SD, SP
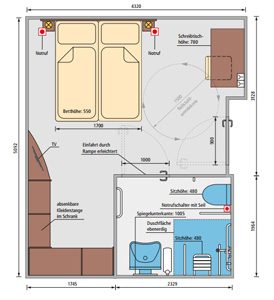
barrierefreie Innenkabine Kabinengroesse 13-14 qm
für bis zu 4 Personen
teils getrennt stehende Betten
Kabinenkategorien:IB 4328, 4331, 4335, 4337, 4358, 4428, 4431, 4433, 4436 und 4458
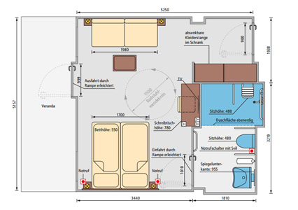
barrierefreie Verandakabine Kabinengroesse 20-25 qm
für bis zu 2 Personen
inklusive ca. 6 qm Veranda
Bad mit Dusche
Kabinenkategorien: VH 5170, 5173, 5270, 52873, 5180, 5181, 5280, und 5281
Die Technischen Daten der AIDAprima

AIDAprima wird von "Dual-Fuel"-Motoren angetrieben, die auf See mit Dieselkraftstoff und während der Liegezeit alternativ über Flüssig-Gas betrieben werden.

Ganz neu ist die weitergehende Antriebstechnik bei AIDAprima. Erstmalig kommt auf einem Hochsee-Kreuzfahrtschiff die MALS-Technologie (Abkürzung für "Mitsubishi Air Lubrication System" -Mitsubishi Luftschmierungssystem) zum Einsatz.
Dabei wird unter dem Rumpf großflächig Luft ausgestoßen, die sich wie ein Schmierfilm an die Rumpfkontur anlegt und den Strömungswiderstand reduziert. Die Bauwerft gibt eine Kraftstoffersparnis von etwa sieben Prozent an.

  • Schiffsklasse
  • Schiffslänge
  • Schiffsbreite
  • Tiefgang
  • Tonnage
  • Geschwindigkeit (max.)
  • Passagiere (max.)
  • Besatzungsmitglieder
  • Decks
  • Kabinen / Suiten
  • Sonnendeck
  • Spa- u. Wellnesberreich
  • Hauptmaschinen
  • Energieversorgung
  • Leistung
  • Hyperion-Klasse
  • 300 m
  • 37,6 m
  • 8,1 m
  • 124.500 BRZ
  • 21,5 Knoten
  • 3300
  • 900
  • 18
  • 1.643
  • 8.050 m²
  • 3.100 m²
  • Dieselelektrischer Antrieb
    2 x Propellergondel (ABB Azipod XO2100)
    3 x Dieselmotor (Caterpillar-MaK 12VM43C)
    1 x Diesel- / Gasmotor (Caterpillar-MaK 12VM46DF), 10.800 kW
  • 28.000 kW (38.069 PS)
5. Element Bar
5. Element Bar Für die Besucher der Erlebniswelt "4 Elements" hält die "5. Element Bar " Getränke und Erfrischungen bereit.
AIDA Bar
AIDA Bar Die "AIDA Bar" besitzt die längste Theke auf den Weltmeeren. Die sternförmig gestaltete Theke ist jederzeit ein beliebter Treffpunkt. Tagsüber können Sie hier gemütlich einen Kaffee oder ein köstliches Getränk genießen. Abends verwandelt sie sich zur Tanzbar, wo sich Gleichgesinnte treffen, um das Tanzbein zu schwingen.
Café Mare
Café Mare Im Kaffeehaus an Bord schmeckt eine Tasse Kaffee aus Kenia und Inden besonders gut, während Sie sich bei einem kleinen Plausch mit Freunden und Bekannten glänzend unterhalten.
Casino Bar
Casino Bar Im Casino an Bord können Sie sich zwischendurch an der "Casino Bar " vom heißen Spiel erholen und neue Energie tanken.
Diskothek D6
Diskothek D6 Das "D6" ist der Treffpunkt für alle Nachtschwärmer und Discofans. Tagsüberfinden im "D6" die verschiedensten Tanzkurse statt, in der nacht können Sie das Gelernte gleich in die Tat umsetzen. Aktuelle Hits, groovige Beats und coole Lightshows sorgen für ansteckende Tanzbegeisterung – wenn Sie wollen, bis zum Morgengrauen.
Lanai Bar
Lanai Bar Die " Lanai Bar" ist der beste Platz zum Chillen, Abschalten und Entspannen. Mit der herrlichen Aussicht verschwindet der Alltag am Horizont.
MAGNUM Pleasure Store
MAGNUM Pleasure Store Haben Sie schon immer von leckeren Toppings auf Ihrem Eis geträumt? Dann wird es Zeit den Magnum Pleasure Store auf den AIDA Schiffen zu besuchen. Wählen Sie den überzug für Ihr Vanilleeis (Milch-, weiße oder Zartbitterschokolade), maximal 3 Toppings (von grobem Salz mit Rosenblättern über Chamallows, Chilipulver bis zu karamellisierten Pekannüssen), ein Drizzle (gestreifter Guss) und entdecken Sie im ersten "MAGNUM Pleasure Store" auf hoher See die neue Art, eine Eis zu genießen.
Nightfly
Nightfly Ideal für die Nachtschwärmer unter den AIDA Gästen liegt die " Nightfly Bar" voll im Trend der Zeit und bietet das perfekte Ambiente für den Start und den Abschluß eines interessanten Abendvergnügens.
Patio Bar
Patio Bar Auf dem Patiodeck steht den Bewohnern der Panoramakabinen exklusiv die " Patio Bar " zur Verfügung. Die fantastische Aussicht wird mit ausgewählten Drinks versüßt und einem stimmungsvollen Ausklang des Tages steht nichts mehr im Wege.
Pool Bar
Pool Bar Swimmingpool, Blue Paradise, Erdbeer Daiquiri - das sind Begriffe, die Sie immer mit der "Pool Bar" mit Blick auf das große Sonnendeck verbinden werden.
Spray Bar
Spray Bar Die ganz in weiß designte "Spray Bar " befindet sich direkt am Bug der AIDAprima. Sie verfügt über einen eigenen Außenbereich in der Spitze des Schiffes und ist Gästen ab 18 Jahren vorbehalten. Die moderne gestylte Bar erstreckt sich über zwei Decks.
Sunset Bar
Sunset Bar Die "Sunset Bar" liegt oberhalb des Theatriums und von dort beobachten Sie die Geschehnisse auf der Bühne entspannt mit einem Drink in der Hand.
Theatrium Bar
Theatrium Bar Im Theatrium ist die "Theatrium Bar " ein zentraler Treffpunkt für alle, die sich gern begeistern lassen, sich aber zwischen den fantastischen Shows und der atemberaubender Akrobatik eine Pause gönnen wollen.
Vinothek
Vinothek Die Weinliebhaber unter den AIDA Gästen finden in der " Vinothek " erlesene Weine aus allen Ecken der Welt. Mit einer Käseplatte, frischem Brot und ausgesuchten Spitzenweine verbringen Sie gehaltvolle Stunden in der " Vinothek ".
Buffalo Steak House
Buffalo Steak House Im "Buffalo Steak House" können Sie ein Menü ganz nach Ihrem Gusto zusammenstellen. Aus bestem American Beef und American Bison servieren Ihnen die Steak-Spezialisten einzigartige Tomahawk Steaks oder unvergleichliche Wagyu Skirt Steaks. Hereford-Rinder von der Morgan Ranch in Nebraska und Bisons aus den Weiten der nordamerikanischen Prärie liefern Fleisch erster Güte. Der Grillmeister an Bord bereitet jedes Stück ganz nach Ihren Wünschen zu.
Gourmet Restaurant Rossini
Gourmet Restaurant Rossini Das Können und die Kreativität der Spitzenköche an Bord lassen aus marktfrischen Zutaten täglich neue wundervolle Gerichte entstehen. Im "Gourmet-Restaurant Rossini" erwarten Sie eine exzellente Küche und der perfekte Service in einer behaglich-eleganten Atmosphäre.
Kochstudio
Kochstudio In diesem "Kochstudio" verraten Spitzenköchen ihre Lieblingsrezepte und Küchentricks. Unter der Anleitung dieser renommierten Küchenexperten schnippeln, rühren und kochen Sie ihr Traumgericht zusammen und zum Schluss werden gemeinsam an der großen Tafel die eigenen Kreationen geschlemmt.

Prominente Köche, die die Sie vielleicht aus dem Fernsehen kennen, zelebrieren in Workshops und Shows ihre Kochkunst. Sicherlich wird für Sie dann auch die eine oder andere kulinarische Offenbarung dabei sein.
Sushi Bar
Sushi Bar Zarter Fisch und mild gesäuerter Reis sind die Grundlagen der japanischen Küche in der "Sushi Bar". Verfeinert mit frischem Gemüse, exotischen Marinaden und Würzsaucen wird Sie diese japanische Spezialität in ein Feuerwerk exklusiver Offenbarungen in einer besonderen Genuss-Welt entführen.
Bella Donna Restaurant
Bella Donna Restaurant Jeden Abend können Sie im "Bella Donna Restaurant" neue italienische Spezialitäten aus allen Regionen Italiens entdecken. Versuchen Sie die Leckereien wie Anti-Pasta, Pasten, Schinken und Desserts der weltberühmten italienischen Küchenwelt.
East Restaurant
East Restaurant Liebhaber exotischer und fantasievoller Kreationen aus der leichten asiatischen Küche finden im "East Restaurant" frisch zubereitete Speisen mit Gemüse aus Asien und Europa, Fisch, hochwertigem Fleisch und Meeresfrüchten. Teilweise werden die Gerichte im Wok oder japanischen Teppanyaki-Grill direkt vor Ihren Augen zubereitet.
Fuego Restaurant
Fuego Restaurant Dieses Buffet-Restaurant ist vor allem für die jüngeren Gäste auf der AIDAprima konzipiert werden. Das" Fuego Restaurant " befindet sich neben dem "Activity-Deck Four Elements" auf Deck 14 und beietet den Kindern ein reichhaltiges Buffet mit Speisen, die üblicherweise bei den Kids beliebt sind. Für die Eltern und etwas älteren Gäste serviert das " Fuego Restaurant " von 6 Uhr in die Frühe Kaffee und Sandwiches, ab 12 Uhr bis 22 Uhr am späten Abend Burger-, Pizza- und Pastagerichte.
Markt Restaurant
Marktrestaurant Das auf allen AIDA-Kreuzfahrtschiffen beliebte "Marktrestaurant" befindet sich auf Deck 6, direkt neben neben dem "Bella Donna Restaurant". Wie gewohnt finden Sie dort die ganze Vielfalt der mediterranen und mitteleuropäischen Küchenwelt, dazu ein Fisch-Buffet mit Köstlichkeiten aus der restauranteigenen Fischräucherei. Fantasiereich dekorierte Stände und fruchtige Kunstwerke an der "Fruit Carving Station" laden ein zum Schlendern und Kosten.
Weite Welt Restaurant
Weite Welt Restaurant Auf dem Außendeck des " Weite Welt Restaurants" genießen Sie nicht nur eine frische Meeresbrise und eine herrliche Aussicht, sondern lassen sich mit Köstlichkeiten aus den Küchen zwischen Orient und Okzident, Nordkap und Südamerika kulinarisch verwöhnen. Die Spitzenküche bereiten für Sie gerne Thai-Curry, Churasco und mexikanische Burritos, aber auch fantastische Vorspeisen und die tollsten Desserts der Welt zu.
Pier 3 Market
Pier 3 Market Das Buffet-Restaurant " Pier 3 Market " ist eine schicke Kombination aus Bar, Bistro und Schlemmermarkt. Dort finden Sie alles für den kleinen Hunger, zum Beispiel leckere Bagels, Wraps, Salate, Muffins, Brownies und eine große Auswahl an Snacks zum Mitnehmen. Die eignen sich hervorragend für ein gemütliches Frühstück auf dem Kabinenbalkon oder zum Knabbern während eines gemütlichen Fernsehabends. Dazu bietet Ihnen die " Pier 3 Market " eine große Getränkeauswahl an, die von leichten Smoothies bis hin zu exklusivem Champagner reicht.
Scharfe Ecke
Scharfe Ecke Das klassische Angebot "Currywurst" für den kleinen Hunger zwischendurch und als "open-end" für Nachtschwärmer finden Sie im "Scharfen Eck". Dort wird Ihnen die Currywurst nach AIDA Spezialrezept mit der Original AIDA Currysauce in drei Schärfegraden stilgerecht serviert. Dazu gibt es Pommes, Bier und die üblichen Erfrischungsgetränke. Die original AIDA Gewürzmischungen für die perfekte Currysauce zu Hause können Sie im Gegensatz zu vielen anderen "Geheimrezepten" als Urlaubssouvenir an Bord käuflich erwerben.
Tapas Bar
Tapas Bar Die gesellige Bodega finden Sie an der AIDA Plaza. Im "Tapas & Bar" finden Sie kulinarische Köstlichkeiten wie warme und kalte Tapas, gebratene Chorizo, spanische Tortilla, Albondigas, Serrano-Schinken, Meeresfrüchtesalat und vieles mehr. Dazu können Sie als getränk einen Wein, Sangria, Sherry, Brandy und spanisches Bier bestellen. Nach dem opulenten Essen schmeckt in der Bodega eine Tasse mit einen der vielen Kaffeespezialitäten besonders gut.
Brauhaus
Brauhaus Herzhaften Brauhaus-Spezialitäten, wie eine knusprige Schweinshaxe oder die AIDA Brauhauspfanne, erwarten Sie im "Brauhaus". Dazu serviert Ihnen das "Brauhaus-Team" frischegezapftes Bier, das an Bord in riesigen Glaskesseln gebraut wird. Sie haben die Wahl unter mehreren hellen und dunklen Bieren, die alle nach dem deutschen Reinheitsgebot hergestellt werden.
Brasserie French Kiss
Brasserie French Kiss Im Restaurant " Brasserie French Kiss" werden Ihnen von früh bis spät Spezialitäten der französischen Küche serviert. Bouillabaisse, Entenrillette, Pasteten und Terrinen, Snacks mit einer erlesenen Käse- und Salatauswahl, belegte Baguettes und Desserts wie Crème Brûlée und Mousse au Chocolate werden Sie in die Genußwelt der "Haute cuisine" entführen. Für den Abschluß eines vollkommen perfekten kulinarischen Highlights können Sie hausgemachte Pralinen als Souvenir mit auf Ihre Kabine oder Suite nehmen.
Ristorante Casa Nova
Ristorante Casa Nova In dem im typisch italienischen Stil eingerichteten "Ristorante Casa Nova " auf Deck 6 werden Ihnen venezianische Köstlichkeiten kunstvoll unter silbernen Servierglocken serviert. Die feinen Spezialitäten der venezianischen Küche, wie Rindercarpacchio, Büffelmozzarella, frische Pasta oder Scampi a la Bùsera werden Sie verzaubern.
Theatrium
Theatrium Musik, Akrobatik und Tanz sind die Elemente, die Ihnen im " Theatrium " geboten werden, unterstützt durch eine professionelle und perfekte Licht-, Klang- und Bühnentechnik. In dem Kulturtempel finden bis zu 1.200 Kreuzfahrtgäste Platz und es ist damit nun fast doppelt so groß wie auf den Schiffen der vorangegangenen Baureihe. Das absolute Technik-Highlight im "Theatrium" ist ein großer LED-Ball, der 360-Grad-Projektionen bei den Shows ermöglicht.
Beach Club
Beach Club Mitreißende Livemusik und leckere Cocktails sorgen bei den Strandpartys dafür, daß Sie sich wie an der Copacabana fühlen. Diese Fun-Location erstreckt sich über zwei Decks und ist mit einer Folienkuppel überdacht. Bei konstant 25 Grad Celsius können Sie 365 Tage im Jahr unter Palmen relaxen und Strandparty feiern. Ein Außenbereich erweitert den "Beach Club", so daß Sie bei sommerlichen Temperaturen die Angebote vollständig nutzen können. Durch die Kulisse mit dem mit Lasern angestrahlten Wasserfall, der Bühne, den Theken mit Strohdächern, der AIDA Bar und mit einer großen Tanzfläche können Sie tagtäglich bei der Musik eine Südsee-Atmosphäre genießen.
Diskothek D6
Diskothek D6 Coole DJs legen in der Borddisco "D6" bis zum Morgengrauen die aktuellsten Hits auf. Flirten, tanzen und sich näher kommen, im "D6" herrscht immer eine groovige Stimmung.
Casino
Casino In den "AIDA Casinos" schnuppern Sie echte Las Vegas-Luft und können sich in einem stilvollen Ambiente bei Roulette, Poker, Black Jack oder an den über 40 Spielautomaten blendend unterhalten.
Nightfly
Im Nachtclub auf AIDAprima, dem "Nightfly", wird Ihnen ein prickelnder Mix aus Varieté, Burlesque, Komödie, Akrobatik und Tanz geboten. Der Zutritt ist nur für Erwachsene gestattet.
Hemingway Lounge
Hemingway Lounge In der Bibliothek "Hemingway Lounge" an Bord von AIDAprima finden Sie viele fesselnde Thriller- und Kriminalromane, aber auch spannende Lektüren für die romantische Gefühlswelt sind reichlich vorhanden.
Nachtclub Nightfly
Nachtclub Nightfly Eine Mischung aus der Glamourwelt " Moulin Rouge und Cabaret " wird im "Nightfly" geboten und entführt die erwachsenen Gäste auf AIDAprima in das Nachtleben.
Das Konzept des Programms im "Nightfly" basiert auf eine moderne Version des "Vaudeville Theaters“, ein Showerlebnis in Frankreich, Kanada und den USA im 19. und 20. Jahrhundert. Im ersten Nachtclub der AIDA Flotte treffen Varieté, Burlesque, Komödie, Akrobatik und Tanz und bietet eine glamouröse Lounge-Atmosphäre.
Im Nachtclub "Nightfly" wird jeden Tag in der Woche eine andere Show aufgeführt und jede Aufführung ist in drei Blöcke unterteilt, mit genügend Pausenzeit für einen Plausch mit anderen Gästen.
Biking
Biking Während Ihr AIDA Kreuzfahrtschiff im Hafen liegt, können Sie das Konzept "AIDA Biking" nutzen und unvergessliche Bike- und Pedelec-Ausflüge unternehmen. Auf jedem Schiff sind erfahrene Biking Guides für Sie da, die Sie auf Ihren Radtouren begleiten, wenn Sie dies möchten. Eine optimale Betreuung und eine qualitativ hochwertige Ausrüstung unterstützen Sie bei Ihren Touren. In fast jedem angelaufenen Hafen können Sie Ausflüge mit den brandneuen AIDA Pedelecs (Fahrräder mit Elektromotor) unternehmen. An Bord stehen verschiedene Modelle der Fahrräder für Sie bereit, auch AIDA Mountainbikes oder Fitnessbikes.
Fitnessstudio
Fitnessstudio Für die Benutzung der modernen Cardio- und Kraftgeräte im Fitnessstudio werden Sie persönlich durch geschultes Personal eingewiesen und beraten. Sie können an verschiedenen Workshops wie Yoga/Meditation oder Pilates teilnehmen oder die Ihnen passenden Angebote aus den bis zu 30 Kursen nutzen. (z. B. Tae Bo, Bauch Beine Po, Indoor Cycling, Flexi Bar, Stretch & Relax und Rücken Fit und vieles mehr). Der Body & Soul Sport Bereich auf den AIDA Schiffen bietet Ihnen optimale Trainingsmöglichkeiten rund um die Uhr. Auf Wunsch führt das Personal Fitness- und Gesundheitstests, eine fundierte Ernährungsberatung oder eine Körperfettanalyse mit Ihnen durch.
Golf
Golf Ganz gleich ob Einsteiger oder Fortgeschrittener - für jeden Golfer findet das AIDA Golf Team das richtige Level. Unterwegs mit dem "Golfsimulator", dem "Putting Green" und dem "Outdoor Driving Cage" - an Land die Abwechslung der Greens. Mit AIDA spielen Sie auf einigen der schönsten Plätze der Welt. Neben den landschaftlich reizvollen Plätzen können Sie auch schon an Bord ihrer Golffähigkeiten trainieren und verbessern.

Und die Sonne ist immer mit im Gepäck - denn mit AIDA ist das ganze Jahr Golfsaison.

Auf AIDAprima können Sie in dem "Outdoor Driving Cage " voll ausholen und den Abschlag trainieren!
Indoor Cycling
Indoor Cycling Während sich grandiose Landschaften auf einer riesigen Leinwand vor Ihnen auf tun, radeln Sie gemeinsam mit anderen Bikern auf dem "Indoor Cycle" der Spitzenmarke "Tomahawk" virtuell durch die schönste Geländestrecken der Welt. Statts mit den Beinen zu radeln, können Sie beim "Kranking", einer neuen Trendsportart aus den USA, diese Touren auch per "Handkurbel" zurücklehnen und damit Ihre Oberarme und den Oberkörper trainieren.
Personal Trainer
Personal Trainer Ihr "Personal Trainer" hilft Ihnen, Ihre körperliche Fitness zu analysieren und mit einem individuellen Trainingsplan neue Ziele zu erreichen. Personal Trainer hilft Ihnen, Ihren persönlichen Trainingsplan aufzustellen, begleitet Sie beim Fitnesstraining und gibt wichtige Tipps für Ihre Ernährung und persönliche Fitness.
Sportdeck
Sportdeck Für sportliche Aktivitäten im Outdoor-Bereich wurde viel Platz für Jogging, Ballsportarten und vieles mehr auf den AIDA-Kreuzfahrtschiffen geschaffen, dadurch können Sie auch während Ihres Trainings immer den fantastischen Ausblick auf das Meer genießen. Damit Sie möglichst an 365 Tagen im Jahr während der Kreuzfahrt die umfangreichen Sportangebote an Bord nutzen können, wurde ein Großteil des Sportdecks mit einem ausfahrbaren, UV-geschützten Foliendach versehen.

Im Wesentlichen besteht das Sportdeck aus dem "Acivity Deck Four Elements", der schwimmenden "Eisbahn, der riesigen LED-Wand für das "Public Viewing, der "Minigolfanlage", dem " Outdoor Driving Cage", dem "Joggingparcours" und diversen Sportanlagen für den Ballsport.
Segway Touren
Segway Touren Bei der "AIDA Segway-Tour" bewegen Sie sich wie ein Fußgänger durch verwinkelte Gassen und sind schneller auf jedem Berg als mit einem Fahrrad. Mit dem "Segway" erleben Sie die Welt aus einem neuen Blickwinkel und neuem "Move". Für eine geführte Segway-Tour benötigen Sie einen erfolgreich absolvierten Segway-Lizenzkurs. Dieser Kurs dauert weniger als eine Stunde und beinhaltet praktische Fahrübungen und technisches Grundwissen. Bereits 5 bis 10 Minuten nach Beginn des Kurses drehen Sie am Sportdeck die ersten Runden mit dem Segway. Der Segway-Lizenzkurs dient vorallem Ihrer eigenen Sicherheit und Ihrer Gesundheit.
Body & Soul Spa
In dem Konzept "Body & Soul" können Sie auf den AIDA Schiffen außergewöhnliche "SPA-Pakete" buchen. Je nach Schiffstyp werden Sie in unterschiedlich gestalteten SPA-Bereichen von Experten empfangen. Der gesamte Wellness-Komplex auf AIDAprima befindet sich auf dem Lanai-Deck. Der Name „Lanai“ bezeichnet eigentlich eine hawaiianische Insel, „die mit ihren paradiesischen Ausblicken lockt“ , dies trifft im Grunde auch auf das Lanai-Deck zu, welches „um das halbe Schiff herumführt und perfekt für ausgiebige Spaziergänge an frischer Seeluft ist“. Das neu gestaltete Deck verfügt neben den kleinen, beheizten Infinity-Außenpools auch über Entspannungszonen und eine Promenade am Heck.

Im "Organic Spa", dem Wellness-Bereich auf AIDAprima. können Sie sich aus mehr als 80 professionellen Anwendungen für Wellness und Beauty Ihr persönliches Wohlfühlprogramm auswählen. Hochwertige Bioprodukte vollenden den Genuss. Reichlich Raum zum Relaxen bieten auch die großzügige Saunalandschaft und die Wellness-Sonnendecks. Dank Materialien aus der Natur, die überall verbaut sind sowie einem ganz besonderen Tageslicht- und Frischluftkonzept, fühlen Sie sich hier sofort wohl.

Auf AIDAprima können Sie sich für das ganz individuelle Saunaerlebnis eine private Wellness-Suite mit Sauna, Balkon, Whirlpool und Wasserbett buchen. Im 3.100 Quadratmeter "Organic Spa" der AIDAprima genießen Sie in einer durchweg grünen Atmosphäre, inspiriert von der Natur, eine verwöhnende Entspannung. In den fünf verschiedene Saunen wird Ihnen mit den bis zu 22 Erlebnisaufgüsse von zwei Saunameistern so richtig heiß.
Aromasauna
Aromasauna Bei der Aromasauna wird ein spezieller Kräuteraufguss verwendet. Die ätherischen Öle wirken wohltuend und anregend über Atmung und Haut.
Beauty
Beauty Die im Beauty-Programm auf AIDAprima verwendeten "Ligne St Barth"-Produkte basieren auf natürlichen Wirkstoffen karibischer Pflanzen. Ihre heilenden und pflegenden Eigenschaften wurden schon von den Ureinwohnern, den Arawak-Indianern, genutzt. Ihr überliefertes Wissen und die kostbaren Rohstoffe machen die "Ligne St Barth"-Produkte so wertvoll.

Das Konzept umfasst verwöhnende Gesichts- Teilkörper und Ganzkörpermassagen, bräunungsbeschleunigende Pflege vor dem Sonnenbaden, beruhigende Teilkörperbehandlung mit Heilerde und Aloe Vera für sonnenstrapazierte Haut "after sun", exotische Körperpeelingmassagen mit Kokosnussöl und Papaya sowie intensiv pflegende Schönheitsbäder.

Mit einem Make-up der Marke "Couleur Caramel", die sich durch ihre außergewöhnlicher Leuchtkraft und ihrer besonders feinen Textur auszeichnet, gönnen Sie sich ein Beauty-Programm, das zu 95 % ausschließlich aus Naturprodukten besteht.
Bio Sauna
Bio Sauna Die Bio-Sauna wird auch Niedrigtemperatursauna, Danarium oder Sanarium genannt. Sie ist sehr kreislaufschonend. Die Luftfeuchtigkeit liegt bei ca. 50% und die Temperatur beträgt im Schnitt 50°C.
Dampfsauna
Dampfsauna Der Körper wird in der "Dampf-Sauna" schonend entschlackt. Wasserdampf, der auf etwa 60 Grad erhitzt und aus Düsen in einem wasserdichten Raum zugeführt wird, befeuchten die Haut und die Atemwege. Dort entfaltet der Wasserdampf eine befreiende Wirkung. Desweiteren öffnet der heiße Wasserdampf die Poren der Haut und verhilft der Haut zu einer porentiefen Reinigung. In der Dampfsauna entsteht eine extrem hohe Luftfeuchtigkeit, welche die Temperatur vom entweder als sehr hoch empfinden wird.
Finnische Sauna
Finnische Sauna Während Ihrem Aufenthalt in der finnischen Sauna herrschen Temperaturen von bis zu 120°C und eine Luftfeuchtigkeit von ca. 10 Prozent. Diese Saunavariante wird durch einen Wechsel zwischen warm und kalt bestimmt. Nach der Sauna kommt es zur Abkühlung im Freien, in einem Schwimmbecken oder durch kalte Duschen. Dadurch wird der Kreislauf und die Durchblutung angeregt, das Immunsystem gestärkt und der Körper entschlackt und entgiftet.
Kelo-Suana
Kelo-Sauna Die "Kelo-Sauna" ist eine spezielle Holzsauna. Das Holz der jahrhundertealten Kiefernbaustämme, mit dem eine echte Kelo-Sauna gebaut wird, stammt aus dem hohen Norden, aus Norwegen, Finnland, Schweden und Russland. Sie sind sind besonders witterungsbeständig, langlebig und fest, wodurch sie sich nachträglich nicht mehr verziehen oder verändern können. Das Raumklima in der Holzsauna ist besonders angenehm, die Temperaturen bewegen sich um 90 Grad, die Luftfeuchtigkeit liegt bei etwa 10 Prozent.
Tepidarium Kaminzimmer
Tepidarium Kaminzimmer Das Konzept des "Tepidariums", einer Sauna mit sehr niedrigen Temperaturen und geringer Luftfeuchtigkeit, hat sich bereits im alten Rom bewährt. Das milde Raumklima schont den Kreislauf, kann den Entgiftungs- und Entschlackungsprozess des Körpers anregen und das Immunsystem stärken. Das Kaminzimmer ist als Ruheraum gedacht, in dem man sich nach den Anwendungen noch ein wenig ausruhen kann.
Thalasso-Rasul-Zeremonie
Thalasso-Rasul-Zeremonie Die wohltuende "Thalasso-Rasul-Zeremonie" beinhaltet eine sanfte Massage mit angenehm perlenden Meersalzkristallen während Sie sich auf den warmen Steinen entspannen. Anschließend können Sie Ihre Haut im Rasul mit einer entschlackenden und straffenden Algenpackung verwöhnen lassen, die mit einem zarten Regenguss, begleitet von stimmungsvollen Lichtszenarien, wieder abgewaschen wird. Am Ende der "Thalasso-Rasul-Zeremonie" sorgt der Einrieb einer reichhaltig pflegenden Algencreme für eine nachhaltige Wirkung dieser Wellness-Anwendung.
Whirlpool-Kneipp-Rondell
Whirlpool-Kneipp-Rondell Mit den fünf Whirlpools (ein Innenpool, vier Außenpools), den Erlebnisduschen und dem "Kneipp-Rondell" werden Sie Ihre Freude haben und Sie können sich bei Bedarf eine Massage unter freiem Himmel gönnen.